Lun - Vier : 8:00 -14:00
Av. Ciutat de Pamplona, 85-A, 46410 Sueca, Valencia
961 71 01 03
¿Alguna pregunta?
961 71 01 03
¿Tienes alguna duda?

Productos

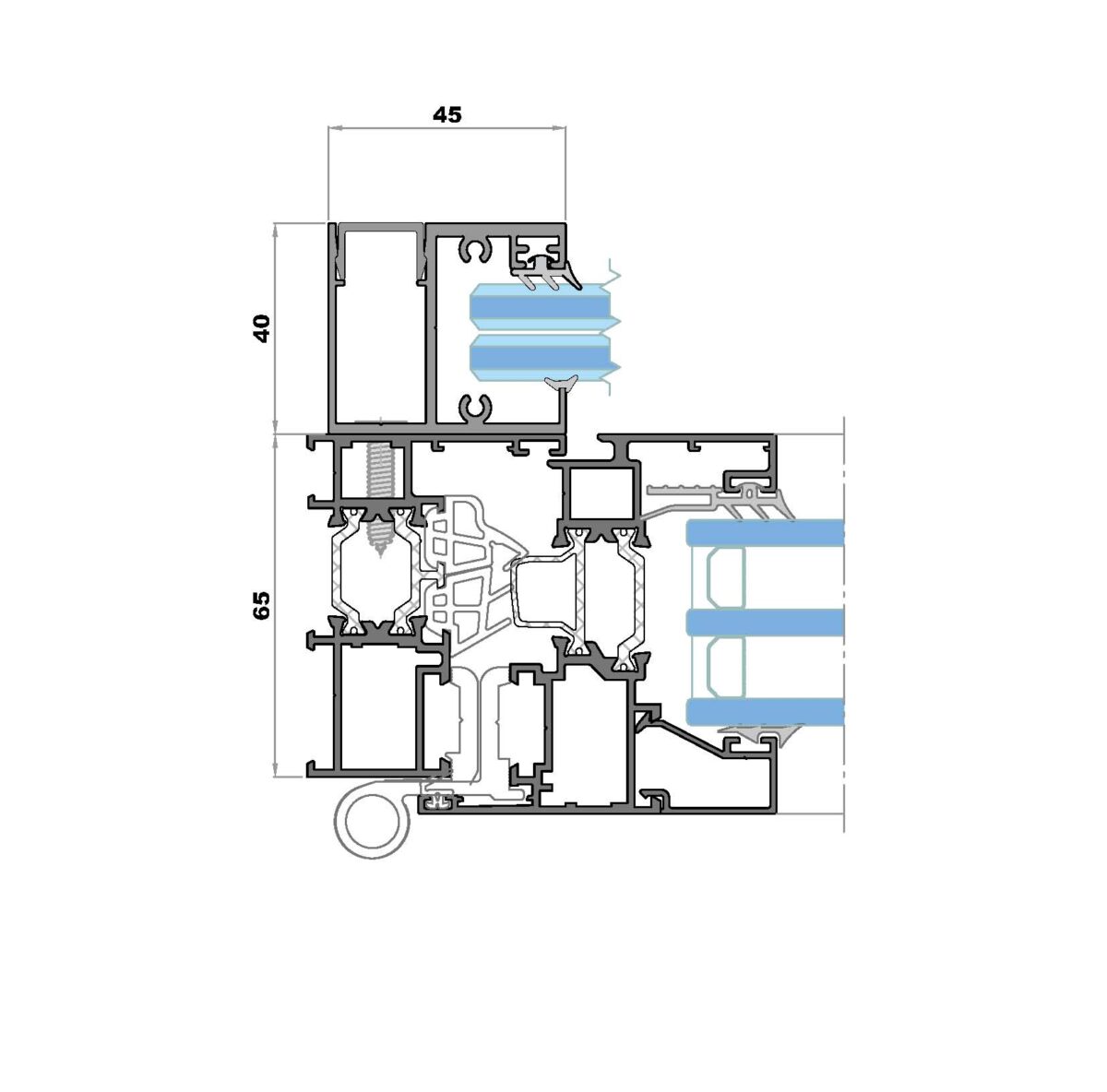
Fusion

Sistema de barandilla de vidrio acoplada directamente a los perfiles de cerco de las carpinterías.
Se trata de una solución limpia y fácil de fabricar e instalar, que permite hacer balconeras en las plantas altas y contar con vistas sin obstáculos.
Soporta cargas de hasta 1,6 kN/ml y permite el acristalamiento de vidrios de 6+6 y 8+8 mm, por lo que cumple hasta la clasificación C4 del CTE
SKU: fusion Categoría:

Descripción

Cart (0 items)