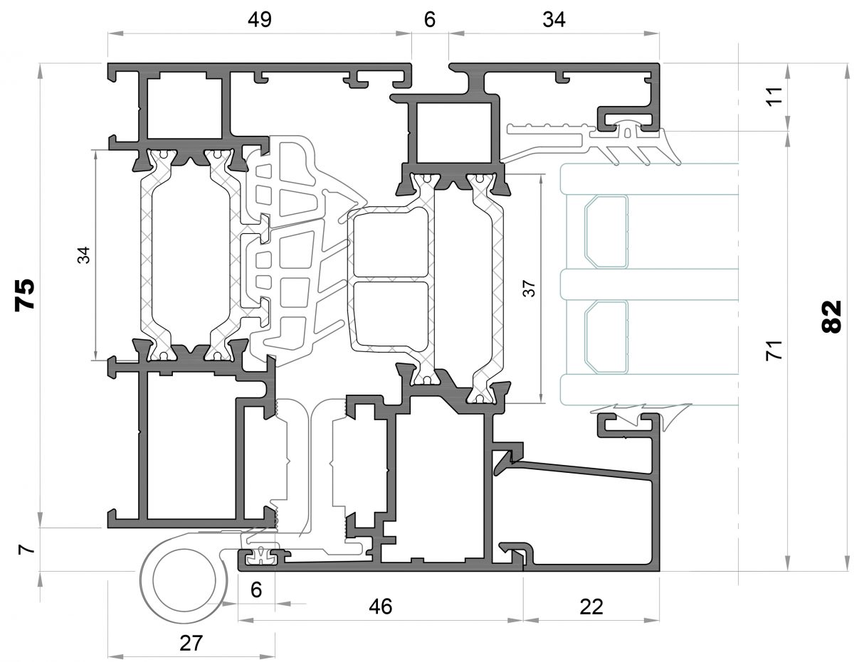
Alg 75
Carpintería abatible de tres cámaras con rotura de puente térmico para puertas y ventanas; con un diseño robusto, una gran versatilidad y un alto aislamiento térmico, ya que está ensamblada con poliamidas de 34 y 37 mm. Permite hasta 53 mm de galce de vidrio, pudiéndose realizar grandes ventanales para mejorar el confort y la luminosidad de las viviendas o edificios.
Marco y hoja con una profundidad de 75 y 82 mm respectivamente y Canal Europeo.
Dicho canal posibilita todo tipo de aperturas como practicable interior o exterior, abatible, oscilo batiente, proyectante exterior, oscilo paralela o plegable.
Permeabilidad al aire CLASE 4
UNE EN 1026 – EN 12207
Estanqueidad al agua CLASE E3600
UNE EN 1027 – EN 12208
Resistencia al viento CLASE C5
UNE EN 12211 – EN 12210
Transmitancia térmica «Uw» Ventana 0,9 W/m2 K
UNE EN ISO 10077-1
Transmitancia térmica «Uf» Marco 1,2 W/m2 K
UNE EN ISO 10077-2
Aislamiento acústico 44 dB (-1;-3)
UNE EN 10140-2:2011
Capacidad para soportar cargas APTO
UNE EN 14609:2004
Antiefracción RC2
UNE EN 1627:2011
Ventana de 2 hojas de 1230 x 1480 mm
Ventana de 2 hojas de 1600 x 2335 mm; vidrio Ug: 0,5 W/m2 K
Ventana de 2 hojas de 1230 x 1480 mm; vidrio 8+6 Silence/24/6+4 Silence
Ventana de 1 hoja de 1000 x 1200 mm





