Alg 75
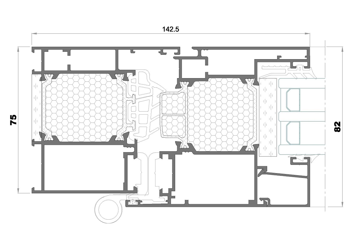
La carpintería ALG 75 Passive House de ALUGOM ha sido diseñada para alcanzar un bajo consumo energético. Este sistema ha obtenido una certificación ID 1676wi04 para la categoría warm-temperate por el PASSIVE HOUSE INSTITUTE, con un Uw ≤ 1,0 W/m²K, convirtiéndose en la solución más apropiada para las edificaciones en las que se pretende conseguir una arquitectura sostenible con el mínimo consumo energético. Esta carpintería de tres cámaras con RPT y poliamidas de baja conductividad, construida con cerco y hoja balconera, combinada con espumas especiales, proporciona un alto aislamiento térmico. Los marcos y hojas, de 75 y 82 mm respectivamente, permiten grandes ventanales y soportan pesos de hasta 150 kg.
Transmitancia térmica “UF” Marco 1,0 W/m²k
Transmitancia térmica “UW” ventana 0,9 W/m²k
Estanqueidad al AGUA CLASE E3600
Permeabilidad al AIRE CLASE 4
Aislamiento ACÚSTICO 44 (-1;-3)db
Carpintería practicable con Rotura de Puente Térmico.
Junta abierta con junta central.
Sección de marco 75 mm
Sección de hoja 82 mm
Apertura practicable Peso por hoja: 100 kg
Apertura Oscilo Batiente Peso por hoja: 140 kg
Apertura Oscilo Batiente con herraje oculto Peso por hoja: 150 kg
Medidas máximas por hoja 1700 mm de anchura y 2800 mm altura
Máximo acristalamiento Cerco: hasta 53 mm Hoja: hasta 53 mm








